- Prix
- 409 935 €

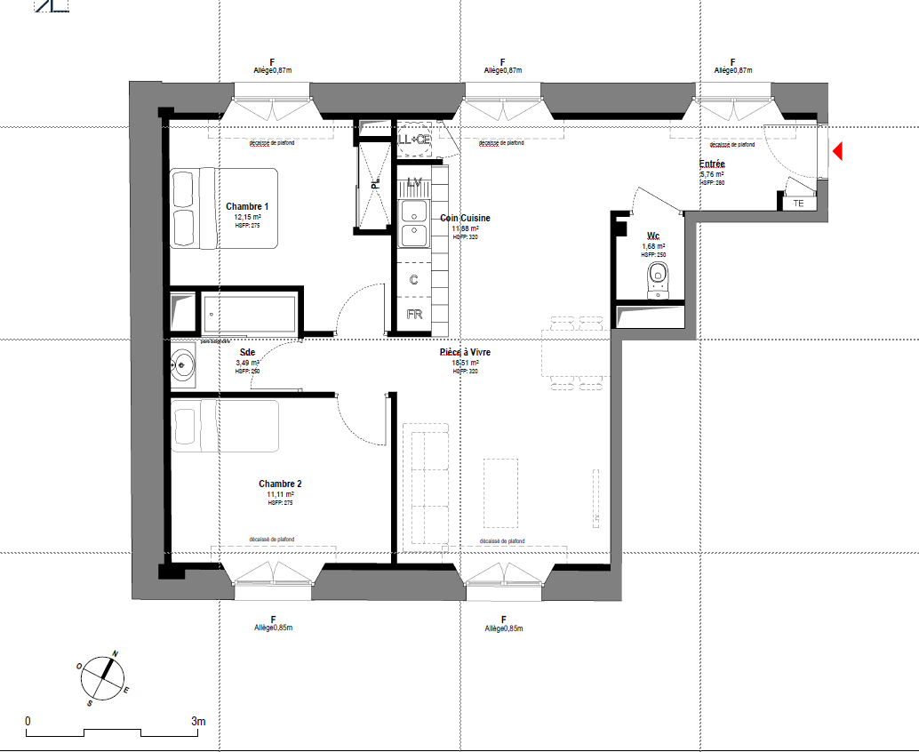
Fontainebleau proche centre, bel appartement au sein d'une élégante résidence dénommée "ATHÉNAÏS" comprenant un ensemble de bâtiments anciens datant du XIXème sciècle, réhabilités en logements de qualité. Il se compose d'une entrée spacieuse desservant un séjour double avec une cuisine américaine aménagée, des toilettes indépendants, 2 chambres et une salle d'eau. Belle hauteur sous plafond, grandes ouvertures permettant une luminosité maximale. Un cellier et une place de parking complètent ce bien. A 10 minutes à pieds de la place du marché et 3 minutes de la forêt. Livraison fin juin 2026. Investisseurs, la Loi "Denormandie" applicable lors de la réhabilitation de bâtiments anciens vous offre la possibilité d'avantages fiscaux.
Les informations sur les risques auxquels ce bien est exposé sont disponibles sur le site Géorisques
Code postal 77300
Surface habitable (m²) 64,58 m²
Nombre de chambre(s) 2
Nombre de pièces 3
Etage 1
Nombre de niveaux 1
Ascenseur NON
Vue Jardin
Nb de salle de bains 1
Cuisine AMERICAINE
Type de cuisine SEMI-EQUIPEE
Mode de chauffage Electrique
Type de chauffage Radiateur
Format de chauffage Individuel
Interphone OUI
Murs mitoyens 2
Cave OUI
Nombre de parking 1
Exposition NORD-SUD
Copropriété OUI
Lot n° 47
nombre de lots 26
Prix de vente 409 935 €
Les honoraires d'agence seront intégralement à la charge du vendeur
* : Les informations recueillies sur ce formulaire sont enregistrées dans un fichier informatisé par La Boite Immo agissant comme Sous-traitant du traitement pour la gestion de la clientèle/prospects de l'Agence / du Réseau qui reste Responsable du Traitement de vos Données personnelles.
La base légale du traitement repose sur l’intérêt légitime de l'Agence / du Réseau.
Elles sont conservées jusqu'à demande de suppression et sont destinées à l'Agence / au Réseau.
Conformément à la loi « informatique et libertés », vous pouvez exercer votre droit d'accès aux données vous concernant et les faire rectifier en contactant l'Agence / le Réseau.
Si vous estimez, après avoir contacté l'Agence / le Réseau, que vos droits « Informatique et Libertés » ne sont pas respectés, vous pouvez adresser une réclamation à la CNIL.
Nous vous informons de l’existence de la liste d'opposition au démarchage téléphonique « Bloctel », sur laquelle vous pouvez vous inscrire ici : https://www.bloctel.gouv.fr
Dans le cadre de la protection des Données personnelles, nous vous invitons à ne pas inscrire de Données sensibles dans le champ de saisie libre
Ce site est protégé par reCAPTCHA, les Politiques de Confidentialité et les Conditions d'Utilisation de Google s'appliquent.