- Prix
- 689 392 €

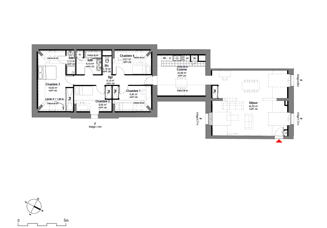
Fontainebleau proche centre, bel appartement au sein d'une élégante résidence dénommée "ATHÉNAÏS" comprenant un ensemble de bâtiments anciens datant du XIXème sciècle, réhabilités en logements de qualité. Il se compose d' un séjour double, une cuisine spacieuse avec coin repas, des toilettes indépendants, 4 chambres dont une suite parentale avec salle d'eau et une salle de bain.. Belle hauteur sous plafond, grandes ouvertures permettant une luminosité maximale. Une place de parking complète ce bien. A 10 minutes à pieds de la place du marché et 3 minutes de la forêt. Livraison fin juin 2026. Investisseurs, la Loi "Denormandie" applicable lors de la réhabilitation de bâtiments anciens vous offre la possibilité d'avantages fiscaux.
Les informations sur les risques auxquels ce bien est exposé sont disponibles sur le site Géorisques
Code postal 77300
Surface habitable (m²) 139,48 m²
Nombre de chambre(s) 4
Nombre de pièces 6
Etage 2
Nombre de niveaux 1
Ascenseur NON
Vue Jardin
Nb de salle de bains 1
Nb de salle d'eau 1
Cuisine SEPAREE
Type de cuisine SEMI-EQUIPEE
Mode de chauffage Electrique
Type de chauffage Radiateur
Format de chauffage Individuel
Visiophone OUI
Murs mitoyens 2
Nombre de parking 1
Exposition EST-OUEST
Copropriété OUI
Lot n° 62
nombre de lots 26
Prix de vente 689 392 €
Les honoraires d'agence seront intégralement à la charge du vendeur
* : Les informations recueillies sur ce formulaire sont enregistrées dans un fichier informatisé par La Boite Immo agissant comme Sous-traitant du traitement pour la gestion de la clientèle/prospects de l'Agence / du Réseau qui reste Responsable du Traitement de vos Données personnelles.
La base légale du traitement repose sur l’intérêt légitime de l'Agence / du Réseau.
Elles sont conservées jusqu'à demande de suppression et sont destinées à l'Agence / au Réseau.
Conformément à la loi « informatique et libertés », vous pouvez exercer votre droit d'accès aux données vous concernant et les faire rectifier en contactant l'Agence / le Réseau.
Si vous estimez, après avoir contacté l'Agence / le Réseau, que vos droits « Informatique et Libertés » ne sont pas respectés, vous pouvez adresser une réclamation à la CNIL.
Nous vous informons de l’existence de la liste d'opposition au démarchage téléphonique « Bloctel », sur laquelle vous pouvez vous inscrire ici : https://www.bloctel.gouv.fr
Dans le cadre de la protection des Données personnelles, nous vous invitons à ne pas inscrire de Données sensibles dans le champ de saisie libre
Ce site est protégé par reCAPTCHA, les Politiques de Confidentialité et les Conditions d'Utilisation de Google s'appliquent.